Technical Brief
Float Placement In Submersible Pump Stations
Float Placement In Submersible Pump Stations.pdf
Proper float placement is essential for pump station performance, reliability, and code compliance. Incorrect placement can cause short-cycling, float entanglement, nuisance alarms, or pump failure. This document provides guidance for float placement in lift stations where pumps operate frequently. Always follow local codes and regulations.
FLOAT OPERATION OVERVIEW
Simplex Stations: Typically uses three floats: off, on, and alarm. The off float, positioned just above the pump, sets the minimum liquid level and pump shutoff. The on-float initiates pumping, located between the off and alarm f loats. The alarm float sends a signal to the control panel indicating a high-water condition.
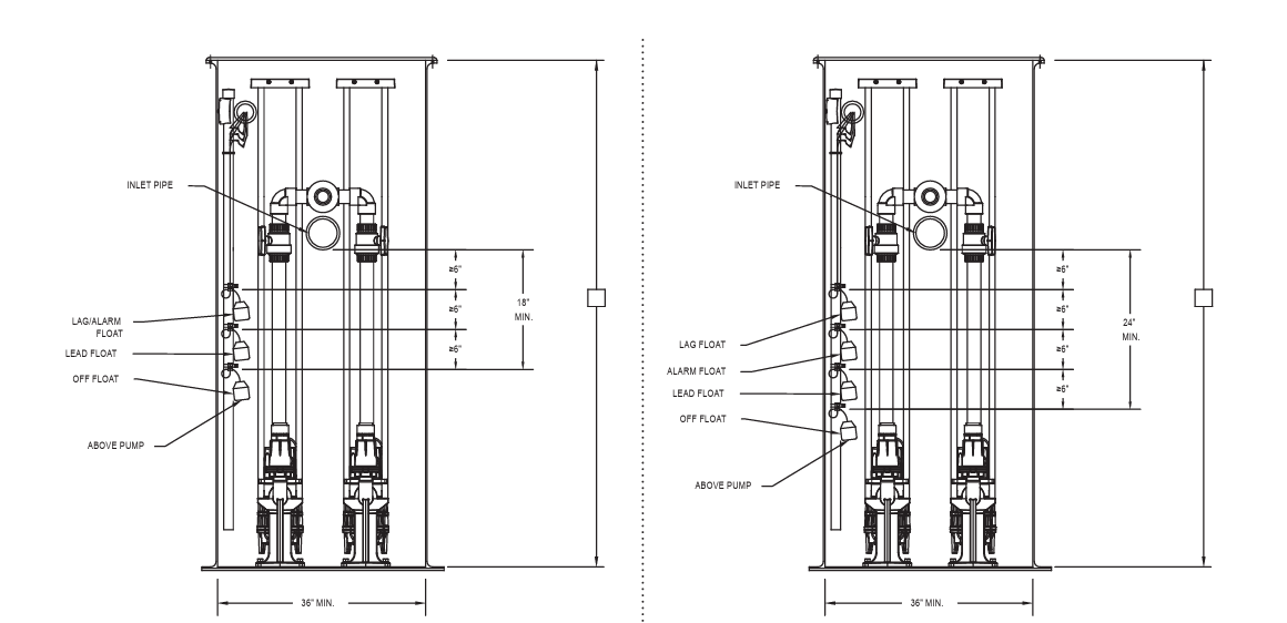
Duplex Stations: Traditionally, duplex stations use four floats: off, lead, lag, and alarm. The off float sets the minimum liquid level. The lead float starts the scheduled pump, while the lag float activates both pumps if the water rises further. The alarm float signals a highwater condition.
To prevent delayed alarms, Zoeller recommends positioning the alarm float below the lag float or using a three-float arrangement with a jumper wire connecting the lag and alarm inputs. This ensures an alarm is triggered when the second pump is needed. Most Zoeller control panels come with this jumper preinstalled.
FLOAT PLACEMENT GUIDELINES
Working Volume: The space between the off float and the inlet. Zoeller recommends a minimum of 18” for three-float arrangements and 24” for four-float arrangements.
Float Spacing: Floats must be spaced at least 6” apart to avoid interference.
Pump Submergence: Ensure pumps remain fully submerged for proper heat dissipation.
Installation: Floats should be installed away from the inlet flow path and positioned so they will not become entangled with pumps, rails, piping, valves, lifting cables, or other equipment. Float movement should not be impeded by basin walls or other obstacles.
Suggested Float Heights:
• Off Float: Just above pump cap.
• Lead Float: At least 6” above off float.
Lead float placement should account for the pump’s maximum recommended starts per hour to prevent short cycling, generally between 6 and 10 starts per hour.
• Lag/Alarm Float: At least 6” above the lead float.
It is recommended to install the alarm float at least 6” below the inlet to provide sufficient emergency storage.
• Ensure all floats are properly secured and oriented so they move freely without interference.

Have questions?
Contact us at https://zoellerpumps.com/contact-us/